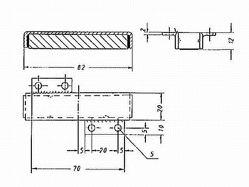
Flachleiste Typ EFA